Turbo
/shop/product/turbo-25Aceste cazane cu ardere îndelungată sunt destinate încălzirii spatiilor de producție mici,
pensiunilor și caselor.
- 20 kW ( încălzește suprafața până la 200 m²
- 35 kW ( încălzește suprafața până la 350 m²
- 50 kW ( încălzește suprafața până la 500 m²
Preturile includ automatizarea corespunzătoare și ventilator.
Garanție
Puterea
12 kW - 50 kW
Oțel de înaltă calitate
5mm grosime
Control automatizat
Controller PID
Eficiență
Minimum - 93%
Caracteristici Turbo
Aceste cazane cu ardere îndelungată sunt destinate încălzirii spatiilor de producție mici, pensiunilor și caselor .
Schimbătorul de căldură este realizat sub formă de rafturi din țevi fără sudură. Dimensiunile mari ale schimbătorului de căldură asigură un transfer maxim de căldură. Sistemul de alimentare cu aer multi-canal și dispunerea simetrică a conductelor de aer asigură o combustie uniformă și eficientă a combustibilului. Designul unic al cazanului permite ajustarea randamentului declarat cu un consum destul de mic de combustibil.
Combustibilul este încărcat manual. Ușa înclinată face această procedură mai comoda. Este posibil să instalați un arzător cu peleți, ceea ce va permite furnizarea de combustibil fracționat în regim automat.
Procesul de ardere este controlat de unitatea de control PID.
| Parametri | U.M. | 15 kW | 20 kW | 35 kW | 50 kW | |||||
|---|---|---|---|---|---|---|---|---|---|---|
| Suprafața schimbătorului de căldură | m² | 1,8 | 2,4 | 3,3 | 4,4 | |||||
| Dimensiuni camera de ardere | ||||||||||
| Volum | dm³ | 134 | 206 | 385 | 617 | |||||
| Volumul apei din cazan | l | 49 | 66 | 92 | 131 | |||||
| Greutate cazan fără apă | kg | 215 | 250 | 335 | 490 | |||||
| Temperatura gazelor arse | °C | 100 - 180 | ||||||||
| Temperatura min. recomandata | °C | 58 | ||||||||
| Temperatura max. permisa a apei din cazan | °C | 85 | ||||||||
| Presiunea nominală a apei | mPa | 0,15 | ||||||||
| Consum energie electrica, max | W | 85 | 85 | 105 | 160 | |||||
| Diametrul ext al gurii de evacuare | mm | 159 | 159 | 178 | 219 | |||||
| Diametrul țevilor conexiune rețea apa | mm | 40 | 40 | 50 | 50 | |||||
| Parametri recomandati burlan | ||||||||||
| Secțiunea transversală | сm² | 200 | 200 | 248 | 377 | |||||
| Diametrul intern | mm | 160 | 160 | 180 | 220 | |||||
| Inaltime (min. recomandata) | m | 5 | 5 | 6 | 6 | |||||
| Diametru țevii de sub sigurantele supapei | mm | 15 | 15 | 15 | 20 | |||||
| Diametrul țevii de scurgere a apei din cazan | mm | 40 | 40 | 50 | 50 | |||||
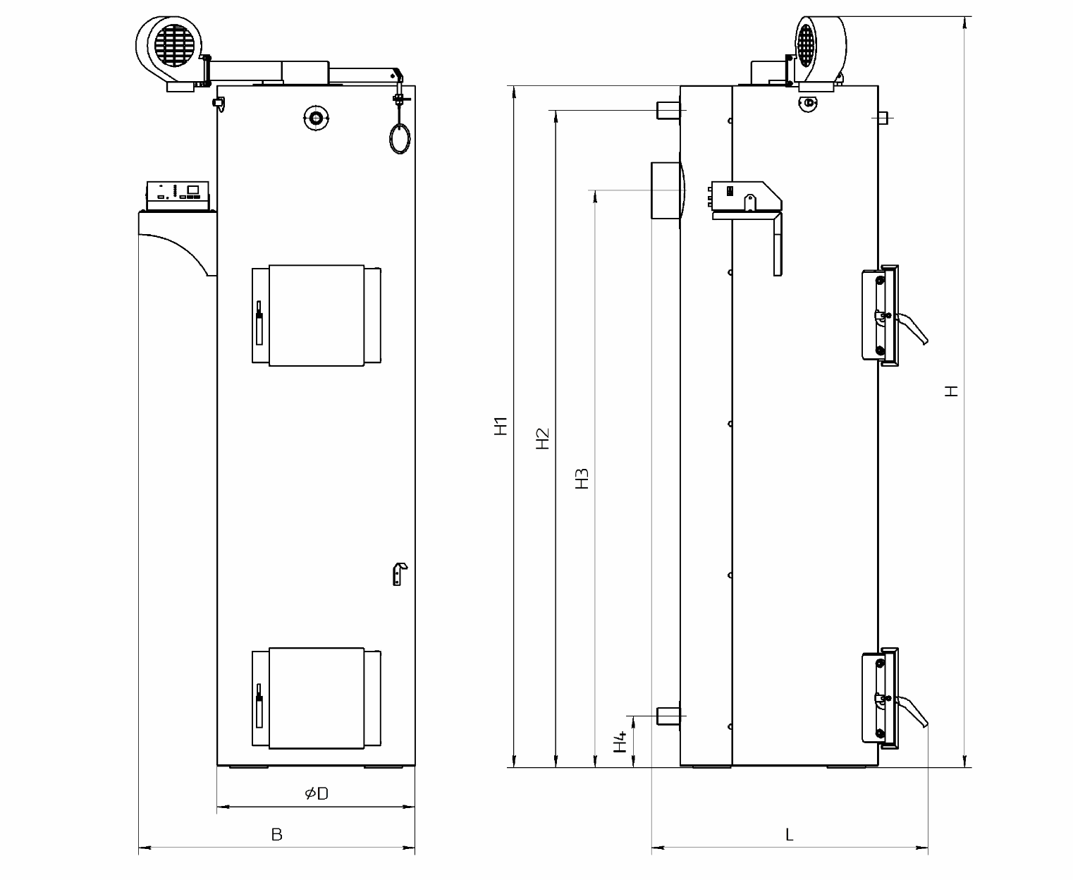
Dimensiuni
| Dimensiuni | U.M. | 15 kW | 20 kW | 35 kW | 50 kW |
|---|---|---|---|---|---|
| B | mm | 795 | 795 | 970 | 1120 |
| D | mm | 570 | 570 | 730 | 890 |
| H | mm | 1690 | 2160 | 2190 | 2190 |
| H1 | mm | 1490 | 1960 | 1960 | 1960 |
| H2 | mm | 1416 | 1886 | 1886 |
1886 |
| H3 | mm | 1186 | 1656 | 1656 | 1656 |
| H4 | mm | 146 | 146 | 146 | 146 |
| L1 | mm | 795 | 795 | 960 | 1120 |
Instrucțiuni
Peste 50.000 de clienți folosesc producție Altep pentru încălzire.
Casa ta se încălzește cu producție Altep.







